| 価格 | 2,480万円 ![]() |
||||
|---|---|---|---|---|---|
| 所在地 | 兵庫県川西市緑が丘2丁目
この地域周辺の物件を見る |
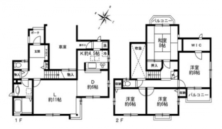
土地面積 | 200.48m² (60.65坪) | 建物面積 | 105.98u |
| 築年月 | 1998年1月築 | 間取り | 3LDK (-) | ||
| 交通 |
能勢電鉄 山下 徒歩17分
|
||||
電話をかける(携帯・PHS可)
0120-930-922
「ホームページを見た」とお伝え下さい。
お問い合わせ番号をお伝えください
RHS-AYA400826
| 特徴 |
|
|---|---|
| 備考 |
| 採光面 | - | 構造/階数 | 木造/地上2階建 |
|---|---|---|---|
| 建ぺい率 | 50(%) | 容積率 | 100(%) |
| 駐車場 | 有 | 現況/引渡し | 空家/即時 |
| 土地権利 | 所有権 | 私道負担面積 | - |
| 接道状況 | 接道: 北 10m 公道 道路幅: 6.2m 接道: 西 11.5m 公道 道路幅: 6.3m |
用途地域 |
第一種低層住居専用地域
|
| セットバック | なし | 法令上の制限 | - |
| 地目 | 宅地 | 地勢 | |
| 建築確認番号 | 都市計画 | 市街化区域 | |
| 取引態様 | 媒介 | ||
| 情報更新日 | 2026年02月16日 | 次回更新日 | 2026年03月02日 |
| 小学校区 | 川西市立東谷小学校 (兵庫県川西市) この学区の他の物件を見る |
中学校区 | 東谷中学校 (兵庫県川西市) この学区の他の物件を見る |
|---|
電話をかける(携帯・PHS可)
0120-930-922
「ホームページを見た」とお伝え下さい。
お問い合わせ番号をお伝えください
RHS-AYA400826
| 価格 | 万円 | ||
|---|---|---|---|
| 年利率 | % |
||
| ボーナス払い | 返済年数 | ||
| 頭金 | 直接入力する | 万円 | |

毎月のご返済額 |
ボーナス(×年2回) |
物件価格2,480万円 |
電話をかける(携帯・PHS可)
0120-930-922
「ホームページを見た」とお伝え下さい。
お問い合わせ番号をお伝えください
RHS-AYA400826
営業時間:10:00〜18:00
毎週水曜
夏季および年末年始休暇あり
すまいのご相談はお気軽にどうぞ
R7年11月リフォーム済。新築同様の綺麗な住まいで即入居可能。
土地60.64坪付!広々とした敷地で夢のマイホームを実現。
北西角地の開放感。前道6.2m・6.3mで駐車もラクラク♪
能勢電鉄妙見線「山下」駅徒歩17分。通勤・通学にも便利な立地。